
Dimora Ninfa
In vendita location eventi a Noto: grande proprietà con verande, gazebo e viali curati
- ubicazioneNoto
- superficie casa400 mq
- terreno9.500 mq
- unità3
- vistaPanoramica
- acquasi
- elettricitàsi
Struttura ricettiva a Noto: grande metratura e posizione strategica tra centro, mare e autostrada
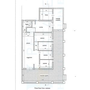
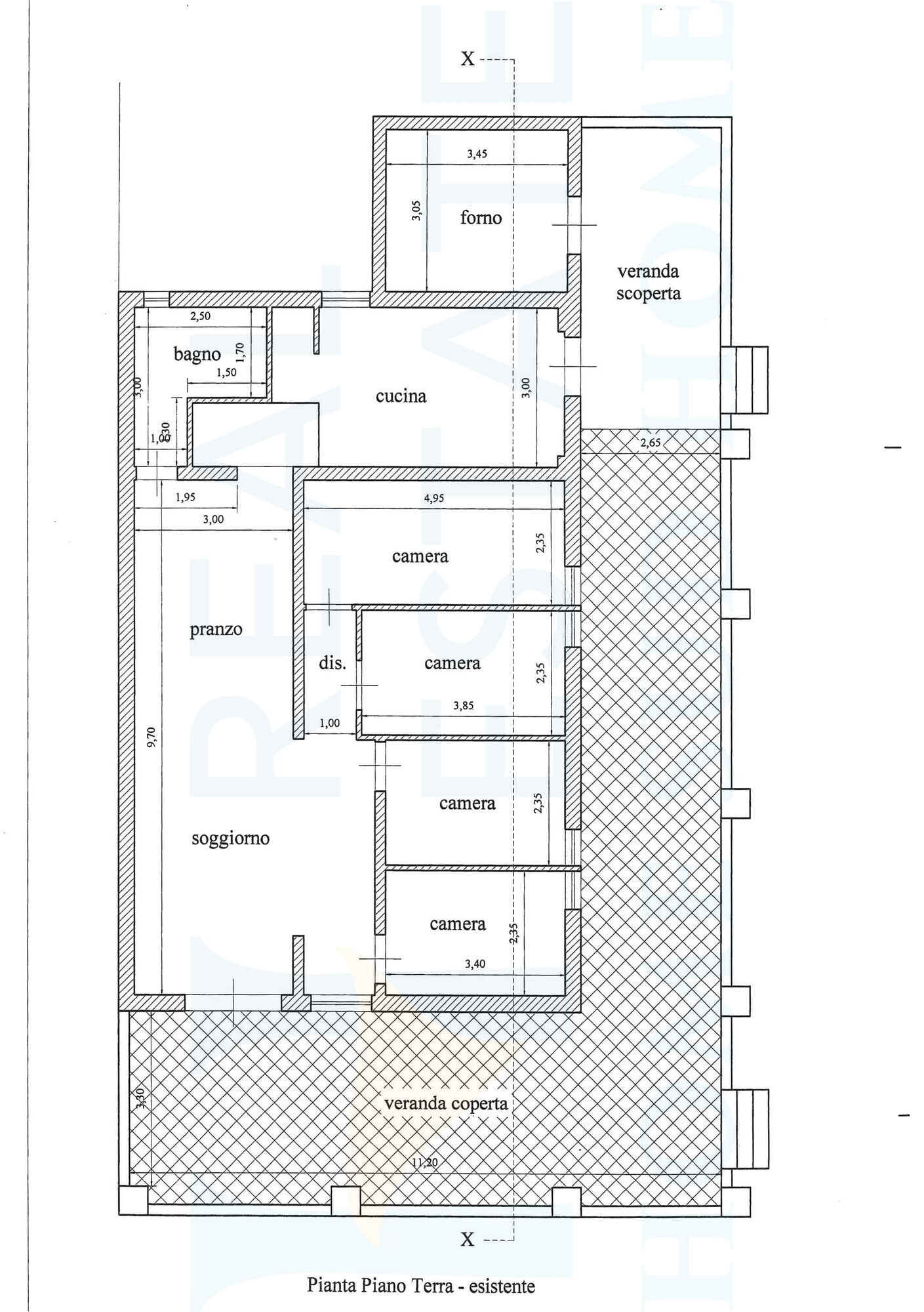
In vendita a Noto una magnifica struttura ricettiva con grande potenziale, composta da un corpo principale con verande, casa abitabile, veranda, sottotetto e gazebo, per un totale di circa 400 mq di strutture. L’immobile, attualmente adibito a location per eventi, è da restaurare e rappresenta un’occasione ideale per chi cerca un investimento da valorizzare nel settore turistico-ricettivo o desidera trasformare la proprietà in una residenza privata con ampi spazi e grande giardino. La distribuzione e la presenza di più volumi rendono la soluzione particolarmente versatile, perfetta per progettare aree dedicate all’ospitalità, alla ristorazione, al relax o a un’abitazione principale con spazi accessori.
La posizione è un punto di forza assoluto: a pochi passi dal Lido di Noto e a pochi minuti dalla costa, con il centro storico di Noto raggiungibile in circa 5 minuti e lo svincolo autostradale a circa 5 minuti. Una combinazione rara che garantisce visibilità, facilità di accesso e comodità logistica, elementi determinanti per una struttura destinata a eventi e accoglienza.9.500 mq di terreno con viali curati: giardino, alberi mediterranei e impianti già presenti
La proprietà è inserita in un terreno di circa 9.500 mq, organizzato con viali ben curati e un grande giardino ricco di vegetazione ornamentale e piante tipiche mediterranee: arance, carrubi e ulivi. Un contesto verde scenografico, ideale per eventi all’aperto, cerimonie, ricevimenti o semplicemente per vivere uno spazio esterno di grande qualità, con aree ombreggiate, percorsi e scorci suggestivi. La dimensione del lotto offre inoltre ampie possibilità di personalizzazione, creando zone lounge, spazi wellness o nuove aree funzionali in base al progetto.
Un ulteriore plus è la presenza dell’illuminazione e del sistema idrico distribuiti su tutta la proprietà, un vantaggio concreto per la gestione immediata e per la pianificazione del restauro. Un’opportunità a Noto per chi cerca una location vicina al mare, con grande metratura e terreno importante, pronta a diventare un progetto di successo nel turismo o una residenza esclusiva.
Caratteristiche
- Diversi corpi
- Posizione ricca di pace
- Da ristrutturare
Richiesta appuntamento
Struttura ricettiva in vendita a Noto vicino al mare
Location per eventi a Noto da restaurare
Proprietà 400 mq con terreno 9500 mq Noto
Struttura vicino Lido di Noto a pochi passi
Investimento turistico a Noto 5 minuti dal centro storico
Struttura con gazebo verande e sottotetto Noto
Proprietà con giardino e viali curati a Noto
Terreno con arance carrubi e ulivi a Noto
Struttura con impianto idrico e illuminazione già presenti
Opportunità immobiliare Noto vicino svincolo autostradale



































Documenti
Immobili correlati


Dimora del Fanciullo

Tenuta Americana

Dimora Levriero

Tenuta Don Tancredi

Gran Dimora Marunìi

Dimora dei Sogni

Tenuta Alcantara

Dimora Magnolia

Tenuta Sacra

Tenuta Spicalora

Tenuta Biologica

Dimora Donna Rosina

Tenuta Grani Antichi

Dimora dei Monumenti

Tenuta degli Iniziati

Dimora Aguglia

Dimora nella Grotta

Dimora Pietra Viva

Dimora Canonica

Dimora Cucuzza

Dimora Power

Dimora del Precettore

Tenuta Fior D'Angelo

Dimora Florida

Dimora Placida

Dimora Eneide

Tenuta Neogotica

Tenuta del Grano Netino

Dimora della Narrazione

Tenuta Poggio del Sole

Tenuta Amore Mio

Tenuta Terravecchia

Dimora Dollaro

Tenuta Angolo Fiorito

Dimora degli Albori

Dimora dei Titani

Tenuta del Tellaro

Dimora Baciami Amore

Dimora Acqua Dolce

Dimora Colle Ulivo

Tenuta Cavalli Liberi

Dimora del Mito

Dimora Donna Maria

Tenuta Aprileali

Tenuta del Lanario

Tenuta Ercole

Dimora Rosso Porpora

Dimora San Matteo

Tenuta MareMare

Tenuta dei Sicani

Tenuta di Giusi

Tenuta Dei Signori

Dimora la Gran Corte

Dimora ‘700 Siciliano

Tenuta Core Siculo

Tenuta Capo Netino

Tenuta Giulio

Tenuta Casale






























































