
Dimora del Fanciullo
Casa rurale restaurata con vista mare e terreno in vendita a Noto
- ubicazioneNoto
- superficie casa192 mq
- terreno1,3 ha
- unità1
- locali7
- camere da letto5
- bagni3
- vistaMare
- acquano
- elettricitàsi
Una Casa Rurale Restaurata con Vista Mare, Tra Comfort Moderno e Tradizione Siciliana
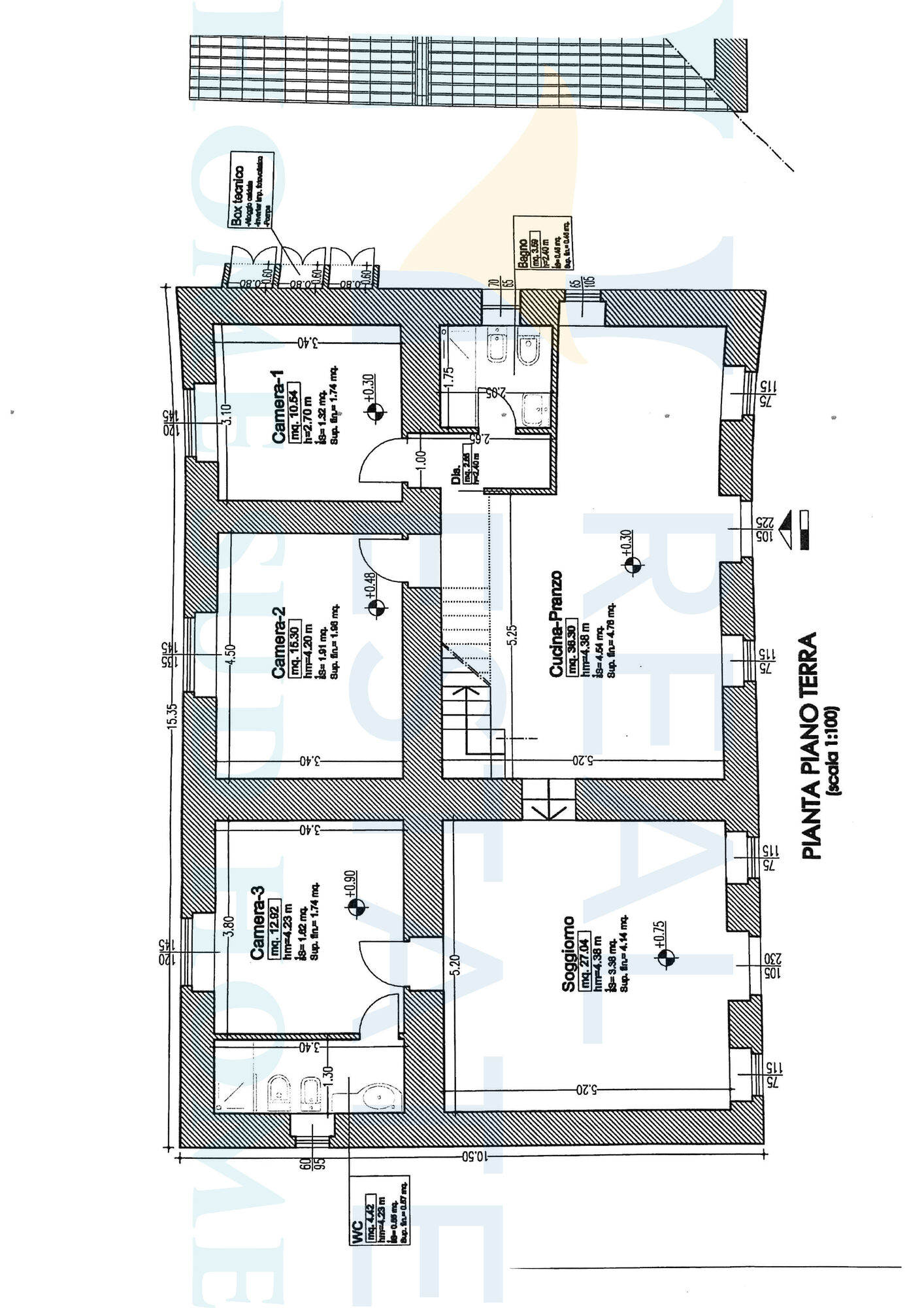
A pochi minuti dal centro storico di Noto, in una posizione privilegiata tra le colline e la costa sud-orientale della Sicilia, proponiamo in vendita un’antica casa rurale completamente restaurata con attenzione ai dettagli e rispetto della struttura originaria. La proprietà si estende per 192 mq totali e si compone di 7 locali, tra cui 5 camere da letto, 2 cucine abitabili, 3 bagni, 2 ingressi separati (uno dei quali con cancello automatico) e posto auto coperto. Ogni ambiente è stato rivisitato in chiave moderna, garantendo funzionalità e comfort, pur mantenendo intatto il carattere rustico tipico della pietra siciliana.
L’abitazione è dotata di coibentazione completa, impianto di videosorveglianza esterno predisposto, antifurto su porte e finestre, aria condizionata, riscaldamento con stufe a pellet, impianto fotovoltaico da 6kW e boiler solare da 300 litri per la produzione di acqua calda. I lavori di restauro, ultimati nel 2016, hanno incluso la realizzazione di un vespaio ventilato per garantire il massimo comfort anche in estate e un’ottima salubrità interna. La casa viene venduta completamente arredata, pronta per essere abitata o utilizzata come investimento turistico-ricettivo.Un Terreno Curato e Panoramico tra Ulivi Secolari e Mare
A completamento della proprietà, un terreno privato di circa 1,3 ettari, piantumato con oltre 60 ulivi (di cui 20 secolari), 50 mandorli, 10 carrubi e numerose piante ornamentali. Lo spazio esterno è curato in ogni dettaglio e si presta perfettamente a un uso agricolo, paesaggistico o semplicemente per vivere il contatto diretto con la natura mediterranea. Il terreno è pianeggiante e comodo da gestire, con ampie aree coltivabili e zone ombreggiate per il relax, immerso in un’atmosfera di pace e privacy assoluta.
Dal giardino e dagli affacci principali si gode di una vista straordinaria sulla costa sud della Sicilia, con scorci sulla campagna circostante, le colline e il mare fino a Portopalo di Capo Passero. La posizione è strategica: 4 km da Noto, 6 km dal mare, ottimamente collegata, ma al tempo stesso immersa in un’oasi di verde e tranquillità. Una soluzione abitativa completa, efficiente e affascinante, perfetta per chi cerca una residenza pronta all’uso o una casa vacanze autentica, con bassi costi di gestione e alti standard di qualità abitativa.
Caratteristiche
- Macchia Mediterranea
- Vista Mare
- Piantumazione Uliveto
- Piantumazione Carrubeto
- Piantumazione Mandorleto
- Posizione ricca di pace
Richiesta appuntamento
Casa rurale restaurata in vendita vicino Noto
Casa con vista mare fino a Portopalo vicino Noto
Casa 192 mq con 5 camere e 3 bagni Noto campagna
Casa con 2 cucine abitabili ideale per investimento ricettivo
Casa arredata chiavi in mano a pochi km da Noto
Casa con fotovoltaico 6 kW e boiler solare 300 litri
Terreno 1,3 ettari con 60 ulivi e mandorli vicino Noto
Casa in campagna con aria condizionata e stufe a pellet
Investimento casa vacanze vicino Noto e spiagge
Proprietà con antifurto e predisposizione videosorveglianza Noto




































Documenti
Immobili correlati


Tenuta Americana

Villa Santa Maria

Casale delle Tradizioni

Dimora Levriero

Villa Luce di Pietra

Villa Aura Siciliana

Villa Cycas

Tenuta Don Tancredi

Casale della Luna

Casale dei Daini

Gran Dimora Marunìi

Villa Arrifriscata

Villa Carmela

Villa La Brezza

Casale del Mandorlo

Masseria dei Ranati

Korallia Beach Villa

Tenuta Alcantara

Dimora Magnolia

Villa Pizzo Gallina

Tenuta Sacra

Tenuta Spicalora

Tenuta Biologica

Casale del Custode

Villa Vita

Villa Mille Capperi

Casale Agave

Dimora Donna Rosina

Masseria Facciajianca

Casale Antico Mulino

Casale del Limone

Casale Due Cipressi

Villa Ariete

Tenuta Grani Antichi

Villa Macchia Mediterranea

Masseria Carrubo

Casale del Pistacchio

Villa Clementina

Dimora dei Monumenti

Tenuta degli Iniziati

Dimora Aguglia

Villa Maiolica

Villa Regina

Villa Panorama del Marchese

Dimora nella Grotta

Masseria Donna Viola

Dimora Pietra Viva

Villa di Mezzo

Dimora Canonica

Villa 3 Gioielli

Dimora degli Albori

Dimora dei Titani

Tenuta del Tellaro

Dimora Baciami Amore

Dimora Acqua Dolce

Dimora Dollaro

Masseria Storica Noto

Tenuta Terravecchia

Tenuta Amore Mio

Tenuta Poggio del Sole

Dimora della Narrazione

Villa Essenza di Luce

Villa Inaria

Villa Concreta

Villa Baco

Tenuta del Grano Netino

Villa delle Cave

Villa Hoya

Tenuta Neogotica

Dimora Eneide

Villa Topazio

Dimora Placida

Villa del Colle Scicli

Masseria Don Giorgio

Villa Maria

Masseria Donna Paola

Dimora Florida

Tenuta Fior D'Angelo

Villa Magnus

Dimora Cucuzza

Dimora del Precettore

Villa Isola

Villa Vasta

Villa Salatedda

Dimora Power

Dimora Colle Ulivo

Tenuta Cavalli Liberi

Dimora del Mito

Dimora Donna Maria

Tenuta Aprileali

Tenuta del Lanario

Tenuta Ercole

Masseria Settecento Siciliano

Dimora Rosso Porpora

Dimora San Matteo

Tenuta MareMare

Tenuta dei Sicani

Tenuta di Giusi

Tenuta Dei Signori

Dimora la Gran Corte

Dimora ‘700 Siciliano

Masseria Russena

Tenuta Core Siculo

Tenuta Capo Netino

Tenuta Giulio

Tenuta Casale



















































































