
Baia Bianca
Investimento Esclusivo sul Mare: Progetto Residenziale con Vista Scala dei Turchi
- ubicazioneAgrigento
- superficie casa1.600 mq
- terreno1,3 ha
- vistaMare
- acquasi
- elettricitàsi
Straordinaria Struttura Residenziale con Vista sulla Scala dei Turchi
In vendita a Realmonte, in una delle location più iconiche e ricercate della Sicilia, si propone una incredibile struttura destinata a uso residenziale per una superficie complessiva di 1.600 mq commerciali. L’edificio si sviluppa su più livelli: piano seminterrato di circa 550 mq, piano terra di circa 550 mq e primo piano di ulteriori 550 mq, offrendo volumi importanti e grande flessibilità progettuale.
A coronare la struttura vi è una magnifica terrazza panoramica di circa 500 mq, dalla quale si gode una vista spettacolare sul mare e sulla Scala dei Turchi, uno scenario di assoluto impatto che rende l’immobile unico nel suo genere. Gli spazi generosi e la posizione dominante lo rendono ideale per uno sviluppo residenziale o turistico di prestigio.Progetto Approvato, Terreno Panoramico e Accesso Diretto al Mare
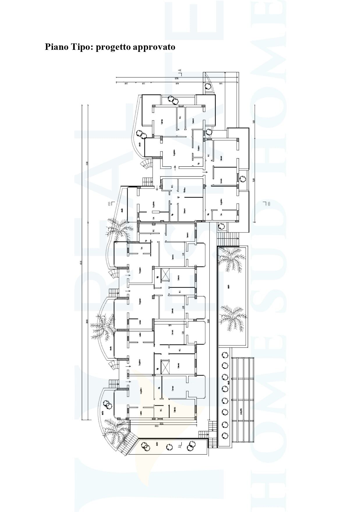
Il progetto già approvato prevede la realizzazione di 14 appartamenti di diversa quadratura, studiati per rispondere a differenti esigenze abitative o ricettive. È inoltre disponibile un secondo studio di distribuzione degli spazi che consente di aumentare il numero delle unità fino a 16 appartamenti, incrementando ulteriormente il potenziale di redditività dell’operazione.
A completare la proprietà vi è un terreno di pertinenza di circa 1,3 ettari, situato in una posizione panoramica irripetibile, con affaccio diretto sulla Scala dei Turchi e accesso privato e diretto alla spiaggia sottostante, caratteristica estremamente rara e di grande valore. La rete viaria circostante è funzionale ed efficiente, garantendo un accesso comodo e immediato alla proprietà. Grazie alla combinazione di metratura, progetto approvato, vista iconica e accesso diretto al mare, questa proposta rappresenta una occasione imperdibile per investire in Sicilia, ideale per sviluppatori e investitori alla ricerca di un progetto esclusivo e di grande appeal internazionale.
Caratteristiche
- Panoramico
- Vista Mare
- Ottimo per costruire una villa
Richiesta appuntamento
Documenti
Immobili correlati


Gran Dimora Marunìi

Korallia Beach Villa

Villino Suon di Fiume

Ville Oro Marino

Rudere Vista Mare

Sviluppo Marino

Colle dei Mari

Resort Oceanico

Casalino Vaddamare

Casina Taliammare

Sogno Marino

Colle dei Fiumi

Villa Panorama del Marchese

Fresco Limoneto sul Mare

Casa Mare Neve

Casa Sogno sul Mare

Palmento Don Marzamaroto

Villa Maria

Villino Marea

Lemon Maris

Affaccio sul Mare

Casa Fiumana

Baglietto sul Fiume

Dimora Donna Maria

La Terrazza del Mare

Villino Margherita

Casina Colle Mare

Orto Botanico Marino

Terramare

Casa Bianco e Blu

Casa Mare Blu

Terre del Mare

Villa Maris

Villa Mare Verde

Angolo Sul Mare

Casa del Fiume Antico

La Stella Blu

Tenuta MareMare

Portico Sul Mare

Villa Damare

Marzamemi Land









































































