

Villino Zinzi
Habitable Country Villa near Cavagrande, 20 Minutes from Noto
- locationNoto
- House surface163 sqm
- Land surface2,700 sqm
- unit2
- bedrooms3
- bathrooms1
- viewCountryside
- watersi
- electricitysi
Country cottage near Cavagrande: habitable, quiet, and perfect for renovation
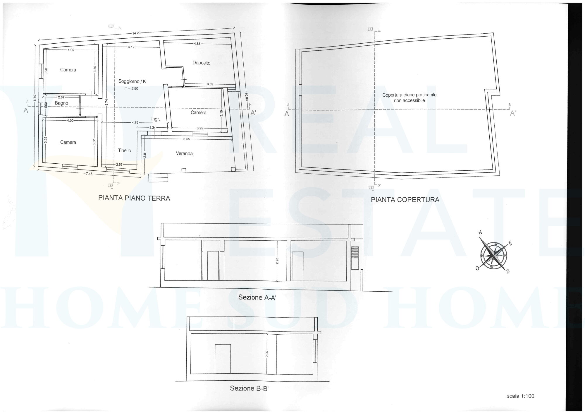
Just a few minutes from the Cavagrande del Cassibile Nature Reserve, in a very quiet area inhabited all year round, we are offering a country cottage that is already habitable but in need of renovation, ideal for those seeking nature, privacy, and a convenient base for exploring southeastern Sicily. The house has a total area of approximately 123 square meters including the veranda and has a functional layout: entrance hall, living room, kitchen, bathroom, and three bedrooms, perfect as a main residence, vacation home, or investment linked to nature tourism.
The setting is scenic and relaxing, with beautiful views of the surrounding countryside and an authentic atmosphere, far from the chaos but with convenient connections. The proximity to the reserve makes the property particularly interesting for those who love hiking, trails, lakes, and natural landscapes, with the opportunity to experience the area in every season.2,700 sqm fenced land with a rich orchard and “oven house”: outdoor spaces to enjoy
The property is entirely fenced and covers an area of approximately 2,700 sqm, planted with numerous fruit and ornamental trees that create a productive and fragrant garden: oranges, medlars, lemons, grapes, blueberries, jujubes, and cherries. A true Mediterranean corner to enjoy the outdoors, ideal for those who want well-kept outdoor spaces, relaxation areas, dining areas, and paths through the greenery, with the possibility of growing and harvesting directly at home.
The offer is completed by the characteristic “oven house” of approximately 40 square meters, a valuable addition that can be used as an annex, hobby space, guest area, or room to be enhanced according to your needs. The location is also excellent: Cavagrande is in the immediate vicinity, Noto can be reached in about 20 minutes, and the coast in about 30 minutes. A complete opportunity for those who want countryside, orchards, and tranquility, with the possibility of renovating the rooms and creating an even more welcoming property.
Caratteristiche
- Garden
- Mediterranean Essences
- Panoramic
- Orange grove planting
- Lemon grove planting
- Olive grove planting
- Several Bodies
- Peaceful Location
- Great for building a villa
- To be renovated
Appointment request
Villa for sale near Cavagrande del Cassibile Nature Reserve
123 sqm countryside villa with 2,700 sqm land in Sicily
Fully fenced property with rich orchard and fruit trees
3-bedroom villa to modernize near Noto
Villa with veranda and countryside views in south-eastern Sicily
40 sqm oven house annex in the countryside
Property with oranges lemons loquats grapes blueberries jujube cherries
Quiet year-round inhabited area near Cavagrande
Holiday home investment near Cavagrande hiking trails
Countryside villa: 20 min to Noto, 30 min to the coast
























Documents
Related properties


Casale delle Tradizioni

Villa Cycas

Casina dei Desideri

Casina Ibiscus

Casale della Luna

Casale dei Daini

Case Pampina

Casa N'Zino

Casale del Mandorlo

Casina Cento Frutti

Casa delle Zagare

Casina Due Valli

Casina sul Canyon

Feudo Case Grandi

Case Don Enzino

Casa Mastro N’Cannucciato

Casina Nonna Santina

Casina dei Colli

Casale del Custode

Caseggiato Sud

Casetta sui Colli

Casina Rossa

Casetta Cotogna

Casale Agave

Casetta Zulla

Casine Avena

Casetta Ibrida

Caracas Palace

Casale del Limone

Casale Antico Mulino

Casale Due Cipressi

Casa dei Livelli

Case della Roccia

Casa del Molo

Casetta della Lucerna

Casale del Pistacchio

Casina Favara

Casalino Vaddamare

Casina del Riparo

Casina Taliammare

Casina della Volta

Casina delle Chiavi

Casina Metamorfosi

Casa Ra Quartara

Casina degli Innamorati

Casa Dolci Vallate

Casetta Petra

Casale Antico Torchio

Casale dei Sapori Siciliani

Casa Santa

Casette Minime

Casina Panorama

Casina Lapillo

Casina Zuccherata

Casa Mare Neve

Casa dei Nonni

Casa Sabbia Dorata

Caseggiato Mediterraneo

Casa Pece Viva

Casa Sogno sul Mare

Casa Regina

Le Casette

Casa Arrivò

Casetta Fontanella

Casina Croce Santa

Casa nel Vico

Caseggiato Enzino

Casa Paoletta

Casa Orizzonte

Casine Bellu Cozzu

Casa Fiumana

Casa dei Tulipani

Casa Aloe

Casa del Centro

Casa Bauhaus

Casa Mao

Casa Zietto

Casetta delle Scale

Casa Lentisco

Casa del Sarto

Casa del Pittore

Casina Don Rico

Casa Paolino

Casa della Nonna

Casine Panoramiche

Casina Felice

Caseggiato Arcade

Casa delle Maestanze

Casa delle Rose

Casetta Votiva

Casa del Dottore

Casina del Viaggiatore

Casetta Betulla

Caseggiato Mau

Casa Sapiente

Casale Cyprus

Casa del Santino

La Casina

Caseggiato del Vallo

Casina dei Cardellini

Casetta 1893

Casa Stai Bene

Casale Helix

Caseggiati Tedeschi

Casa del Femminello

Casale Falesia

Casina Muttidda Bianca

Terre Don Castagna

Casetta Zirru

Casina Tomolata

Casetta Serena

Casale Eusebio

Casale Ficumora

Casa dei Mori

Casetta Ronco

Caseggiato Leopoldo

Casetta Milina

Casina Lentisco

Casa degli Elementi

Casina Pantalica

Casa Vitruvio

Casetta Ntagghiamento

Casale Acreide

Casina sulla Cava

Case dei Pastori Erranti

Casette Bella Vista

Casa e Pagghiarola

Casa Bianco e Blu

Casa Mare Blu

Casa Rupestre

Casina Fortemura

Casine Rupestri

Casale delle Maioliche Antiche

Casa Isidoro

Casa del Fiume Antico

Casetta Bella Vista

Casale Cozzo Ulivo

I Casalini del Durbo

Casine della Zita

Case Delle Vigne

Casale Cozzo Bianco

Casetta Timparossa

Casina sulla Cava

Casina Gallo

Casine Fichi Aruci





































