
Tenuta I Marchesi di Noto
Luxury resort in Noto: spa, restaurants, swimming pools, riding stables, 35-hectare farm, and high-quality finishes
- locationNoto
- House surface3,289 sqm
- Land surface35 ha
- viewOverview
- watersi
- electricitysi
Prestigious resort in the hills of Noto: hospitality, wellness, and horse riding in a single destination
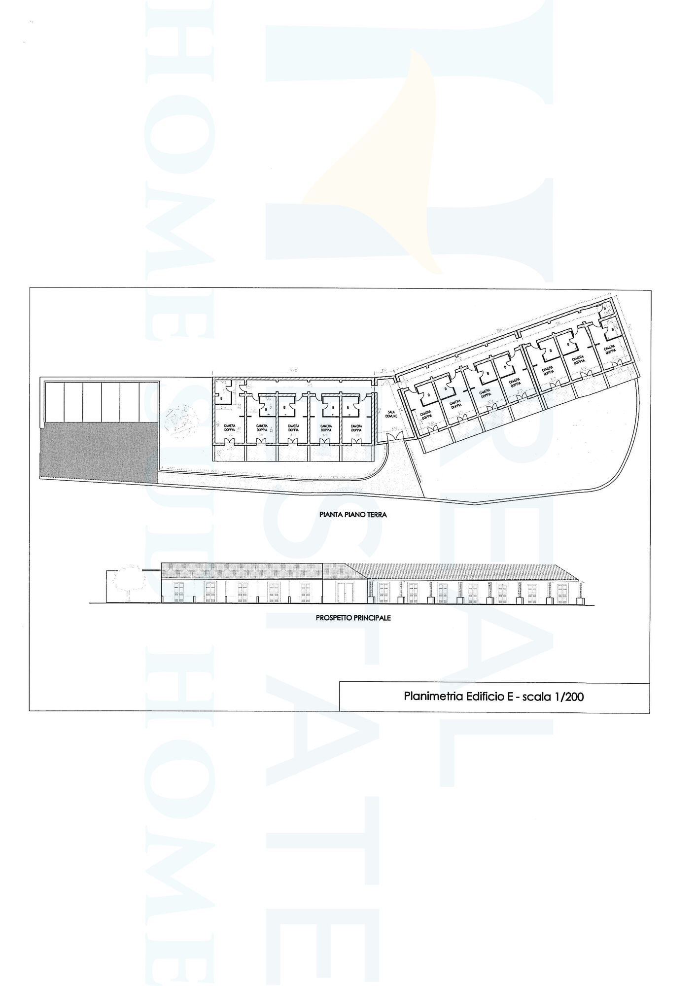
In the Noto area, in a charming panoramic hillside location, we are offering a high-end hotel complex, consisting of several buildings and designed to offer a complete experience of hospitality, dining, wellness, and outdoor activities. The structure includes a reception area with offices, a bar, restaurant rooms, mini apartments, rooms with bathrooms, a wellness center/spa, swimming pools, and riding stables, as well as all support services (kitchens, laundry, warehouses, storage rooms, and technical rooms). This is a prestigious real estate opportunity, ideal for those who wish to acquire a structured hospitality asset, already designed for events, stays, and medium-high-end experiential tourism.
The finishes and construction choices underline the quality of the investment: marble flooring (pietra pece type) in the spa areas such as the herbal tea room, changing rooms, and massage rooms; interior and exterior wooden fixtures; exterior flooring made of clay, cobblestones, and paving stones; fences made of limestone masonry with mortar and dry stone walls. The lighting system is also designed to have a low environmental impact, with lighting fixtures camouflaged in the landscape, enhancing paths, squares, and equipped green areas.3,289 square meters of facilities: rooms, restaurants, spa, swimming pools, riding stables, and advanced facilities
Excellent facilities and a 35-hectare farm: a complete asset for a prestigious resort
Caratteristiche
- Garden
- Mediterranean Essences
- Panoramic
- Orange grove planting
- Olive grove planting
- Carob tree planting
- Almond tree planting
- Planting Arable
- Vineyard Planting
- Several Bodies
- Peaceful Location
- Dependance
- Great for building a villa
Appointment request
Luxury resort for sale in Noto with SPA and pools
3,289 sqm hospitality complex in south-eastern Sicily
Hotel with equestrian center and horse boxes for sale near Noto
Noto resort with mini-apartments, reception, bar and restaurants
Wellness center with sauna and solarium for sale in Sicily
Prestigious real estate investment in the Noto area
Event venue and experiential tourism resort in Sicily
Resort with 41 kW solar PV and solar thermal systems
35-hectare agricultural estate with vineyard and olive grove included
Panoramic hillside hotel in Noto with premium finishes
















































































































































































































































